本文
真田地域(傍陽)売買350万円
更新日:2025年10月27日更新
売買












基本情報
所在地
真田町傍陽7911-1ほか
価格(売買/賃貸)
売買350万円
土地面積
2151.55平方メートル(650.84坪/宅地・畑・山林)
建物面積
1階 105.78平方メートル(31.99坪)
建築年月日
不明(特記事項参照のこと)
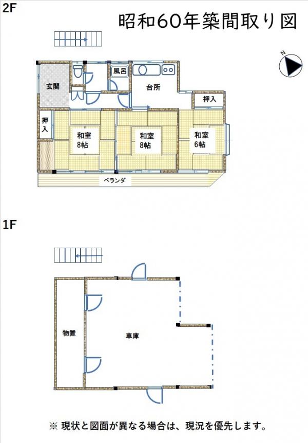
間取り
特記事項参照のこと
設備
電気、プロパンガス、風呂(灯油・2ヶ所)、上下水道、水洗トイレ(洋式・2ヶ所)、駐車場あり(軽自動車1台、普通自動車1台)、庭あり、物置あり
最寄り駅
中組バス停まで80m
その他施設
JR上田駅まで11100m
真田地域自治センターまで3400m
真田地域自治センターまで3400m
通学区
傍陽小学校まで1300m
真田中学校まで3200m
真田中学校まで3200m
※物件掲載内容と現況に相違がある場合は現況を優先と致します。
地図
地図の読み込みに関する問題が発生したとき<外部リンク>
特記事項
管理番号4230(UR-0182)
上田市景観計画区域内、土砂災害警戒区域内、土地の一部が砂防法指定区域内
上記土地面積の内訳は、宅地(真田町傍陽7911-1、607.55平方メートル)、畑(真田町傍陽7910-1は201平方メートル、真田町傍陽7912-1は1050平方メートル)、山林(真田町傍陽7910-2、264平方メートル)
畑のうち、真田町傍陽7912-1は道路を挟んで北側に位置する
上記建物面積は登記簿面積であり、すでに滅失していると思われ、現状の建物は未登記
課税明細書によると、昭和40年築居宅1階93.68平方メートル(3K)、昭和60年築居宅1階64.46平方メートル(3K)、車庫45.45平方メートル、平成13年築離れ19.87平方メートル(1R)、明治元年築物置32.23平方メートル
室内の荷物撤去は売主負担にて行う
現状有姿引渡し
利用状況;昭和40年築居宅 空き0年、昭和60年築居宅 空き8年、平成13年築離れ 空き16年(2024年8月)
経過;2024年8月新規登録、2025年4月価格変更400万円⇒350万円
※上田市では全域において水防法に基づくハザードマップが作成されています。詳細については、「上田市災害ハザードマップ」で検索いただくか、危機管理防災課(Tel:0268-21-0123)までお問い合わせください。
※空き家バンクに登録されている物件は、多少から大幅まで何らかの補修を必要とします。
上田市景観計画区域内、土砂災害警戒区域内、土地の一部が砂防法指定区域内
上記土地面積の内訳は、宅地(真田町傍陽7911-1、607.55平方メートル)、畑(真田町傍陽7910-1は201平方メートル、真田町傍陽7912-1は1050平方メートル)、山林(真田町傍陽7910-2、264平方メートル)
畑のうち、真田町傍陽7912-1は道路を挟んで北側に位置する
上記建物面積は登記簿面積であり、すでに滅失していると思われ、現状の建物は未登記
課税明細書によると、昭和40年築居宅1階93.68平方メートル(3K)、昭和60年築居宅1階64.46平方メートル(3K)、車庫45.45平方メートル、平成13年築離れ19.87平方メートル(1R)、明治元年築物置32.23平方メートル
室内の荷物撤去は売主負担にて行う
現状有姿引渡し
利用状況;昭和40年築居宅 空き0年、昭和60年築居宅 空き8年、平成13年築離れ 空き16年(2024年8月)
経過;2024年8月新規登録、2025年4月価格変更400万円⇒350万円
※上田市では全域において水防法に基づくハザードマップが作成されています。詳細については、「上田市災害ハザードマップ」で検索いただくか、危機管理防災課(Tel:0268-21-0123)までお問い合わせください。
※空き家バンクに登録されている物件は、多少から大幅まで何らかの補修を必要とします。
