本文
真田地域(菅平高原)売買280万円
更新日:2025年8月20日更新
売買










基本情報
所在地
菅平高原1278-1729
価格(売買/賃貸)
売買280万円
土地面積
989平方メートル(299.17坪)【原野】
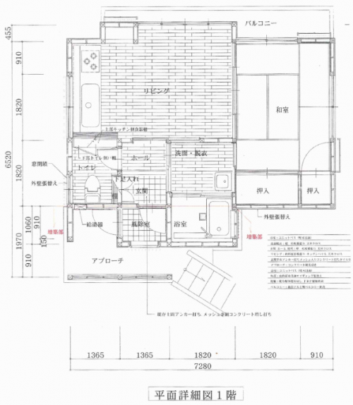
建物面積
1階 34.76平方メートル(10.21坪)
建築年月日
昭和45年8月31日
間取り
1DK
設備
電気、プロパンガス、風呂(ガス)、上水道、くみ取りトイレ(簡易水洗・洋式)、庭あり
最寄り駅
別荘入口バス停まで3100m
その他施設
真田地域自治センターまで16000m
JR上田駅まで24000m
JR上田駅まで24000m
通学区
菅平小学校まで5500m
菅平中学校まで5500m
菅平中学校まで5500m
※物件掲載内容と現況に相違がある場合は現況を優先と致します。
特記事項
管理番号4231(UR-0196)
上田市景観計画区域内、十ノ原別荘地の法令に基づく制限等の概要あり
上記建物面積は登記簿面積であり、未登記増築部分あり
公共下水道未整備地区
駐車スペースについてはお問合せください
和室の壁にシミあり、戸や雨戸に不具合あり
別荘地につき管理費22,000円/年
室内の荷物撤去は売主負担にて行う
現状有姿引渡し
詳しい場所については、https://www.google.com/maps/d/viewer?mid=1JnnOpkggl3b82eGcRUDzzV7x0auLQyAA&ll=36.38791461370176%2C138.2433211&z=11からご確認ください。
リフォーム歴;時期不明 室内全体的にリフォーム実施
利用状況;空き5年(2025年8月)
経過;2025年8月新規登録
※上田市では全域において水防法に基づくハザードマップが作成されています。詳細については、「上田市災害ハザードマップ」で検索いただくか、危機管理防災課(Tel;0268-21-0123)までお問い合わせください。
※空き家バンクに登録されている物件は、多少から大幅まで何らかの補修を必要とします。
※空き家バンクに登録されている物件の下見、内覧時における写真、動画の撮影には、許可が必要ですので、必ず事前にご相談ください。上田市では、無断撮影、SNS等での無断公開はお断りしております。
上田市景観計画区域内、十ノ原別荘地の法令に基づく制限等の概要あり
上記建物面積は登記簿面積であり、未登記増築部分あり
公共下水道未整備地区
駐車スペースについてはお問合せください
和室の壁にシミあり、戸や雨戸に不具合あり
別荘地につき管理費22,000円/年
室内の荷物撤去は売主負担にて行う
現状有姿引渡し
詳しい場所については、https://www.google.com/maps/d/viewer?mid=1JnnOpkggl3b82eGcRUDzzV7x0auLQyAA&ll=36.38791461370176%2C138.2433211&z=11からご確認ください。
リフォーム歴;時期不明 室内全体的にリフォーム実施
利用状況;空き5年(2025年8月)
経過;2025年8月新規登録
※上田市では全域において水防法に基づくハザードマップが作成されています。詳細については、「上田市災害ハザードマップ」で検索いただくか、危機管理防災課(Tel;0268-21-0123)までお問い合わせください。
※空き家バンクに登録されている物件は、多少から大幅まで何らかの補修を必要とします。
※空き家バンクに登録されている物件の下見、内覧時における写真、動画の撮影には、許可が必要ですので、必ず事前にご相談ください。上田市では、無断撮影、SNS等での無断公開はお断りしております。
