本文
武石地域(武石鳥屋)売買750万円
更新日:2025年11月5日更新
売買












基本情報
所在地
武石鳥屋109
価格(売買/賃貸)
売買750万円
土地面積
526.98平方メートル(159.41坪)
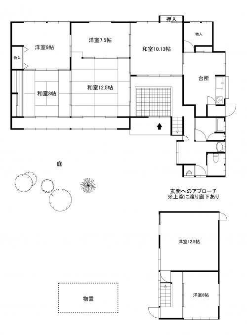
建物面積
1階 118.44平方メートル(35.82坪)
建築年月日
昭和18年月日不詳(課税明細書による)
間取り
10K
設備
電気、プロパンガス、風呂(灯油)、上下水道、水洗トイレ(洋式)、駐車場あり(複数台)、庭あり、物置あり
最寄り駅
鳥屋口バス停まで500m
その他施設
武石地域自治センターまで2500m
しなの鉄道大屋駅まで10000m
しなの鉄道大屋駅まで10000m
通学区
武石小学校まで2900m
依田窪南部中学校まで1600m
依田窪南部中学校まで1600m
※物件掲載内容と現況に相違がある場合は現況を優先と致します。
地図
地図の読み込みに関する問題が発生したとき<外部リンク>
特記事項
管理番号5217(UL-0240)
土砂災害警戒区域内、上田市景観計画区域内
上記建物面積は母屋の登記簿面積であり、現状とは一致していない
上記土地(武石鳥屋109)には駐車場がなく、飛び地にて複数台を用意する
農地利用希望者は農地の紹介も可能、詳細は問い合わせください
室内外の残置物は売主負担にて撤去する
現状有姿引き渡し
利用状況;空き5年(2025年9月)
経過;2025年9月新規登録
※上田市では全域において水防法に基づくハザードマップが作成されています。詳細については、「上田市災害ハザードマップ」で検索いただくか、危機管理防災課(Tel0268-21-0123)までお問い合わせください。
※空き家バンクに登録されている物件は、多少から大幅まで何らかの補修を必要とします。
※空き家バンクに登録されている物件の下見、内覧時における写真、動画の撮影には、許可が必要ですので、必ず事前にご相談ください。上田市では、無断撮影、SNS等での無断公開はお断りしております。
土砂災害警戒区域内、上田市景観計画区域内
上記建物面積は母屋の登記簿面積であり、現状とは一致していない
上記土地(武石鳥屋109)には駐車場がなく、飛び地にて複数台を用意する
農地利用希望者は農地の紹介も可能、詳細は問い合わせください
室内外の残置物は売主負担にて撤去する
現状有姿引き渡し
利用状況;空き5年(2025年9月)
経過;2025年9月新規登録
※上田市では全域において水防法に基づくハザードマップが作成されています。詳細については、「上田市災害ハザードマップ」で検索いただくか、危機管理防災課(Tel0268-21-0123)までお問い合わせください。
※空き家バンクに登録されている物件は、多少から大幅まで何らかの補修を必要とします。
※空き家バンクに登録されている物件の下見、内覧時における写真、動画の撮影には、許可が必要ですので、必ず事前にご相談ください。上田市では、無断撮影、SNS等での無断公開はお断りしております。
