本文
丸子地域(上丸子)売買600万円
更新日:2025年9月30日更新
売買










基本情報
所在地
上丸子1017-3
価格(売買/賃貸)
売買600万円
土地面積
234.88平方メートル(71.05坪)
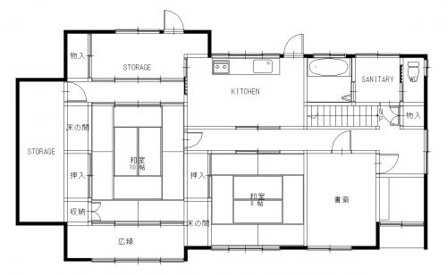
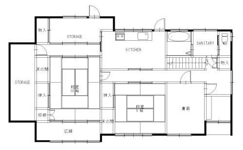
建物面積
1階 107.19平方メートル32.42坪)
2階 25.92平方メートル(7.84坪)
2階 25.92平方メートル(7.84坪)
建築年月日
大正8年(課税明細書による)
間取り
5DK
設備
電気、都市ガス、風呂(ガス)、上下水道、水洗トイレ(洋式)、庭あり、物置あり
最寄り駅
丸子駅前バス停 150m
その他施設
しなの鉄道大屋駅まで6100m
丸子地域自治センターまで450m
丸子地域自治センターまで450m
通学区
丸子中央小学校まで450m
丸子中学校まで800m
丸子中学校まで800m
※物件掲載内容と現況に相違がある場合は現況を優先と致します。
地図
地図の読み込みに関する問題が発生したとき<外部リンク>
特記事項
管理番号3263(UL-0285)
都市計画区域内(近隣商業地域)、土砂災害警戒区域内、上田市景観計画区域内
上記建物面積は登記簿面積(昭和46年11月1日変更、増築)であり、登記と現状が異なります(未登記増築部分あり)
駐車場なし
室内外の荷物撤去は売主負担にて行う
現状有姿引き渡し
リフォーム歴;昭和46年11月変更、増築(登記済み)
利用状況;別荘的利用(2025年9月)
経過;2025年9月新規登録
※上田市では全域において水防法に基づくハザードマップが作成されています。詳細については、「上田市災害ハザードマップ」で検索いただくか、危機管理防災課(Tel;0268-21-0123)までお問い合わせください。
※空き家バンクに登録されている物件は、多少から大幅まで何らかの補修を必要とします。
※空き家バンクに登録されている物件の下見、内覧時における写真、動画の撮影には、許可が必要ですので、必ず事前にご相談ください。上田市では、無断撮影、SNS等での無断公開はお断りしております。
都市計画区域内(近隣商業地域)、土砂災害警戒区域内、上田市景観計画区域内
上記建物面積は登記簿面積(昭和46年11月1日変更、増築)であり、登記と現状が異なります(未登記増築部分あり)
駐車場なし
室内外の荷物撤去は売主負担にて行う
現状有姿引き渡し
リフォーム歴;昭和46年11月変更、増築(登記済み)
利用状況;別荘的利用(2025年9月)
経過;2025年9月新規登録
※上田市では全域において水防法に基づくハザードマップが作成されています。詳細については、「上田市災害ハザードマップ」で検索いただくか、危機管理防災課(Tel;0268-21-0123)までお問い合わせください。
※空き家バンクに登録されている物件は、多少から大幅まで何らかの補修を必要とします。
※空き家バンクに登録されている物件の下見、内覧時における写真、動画の撮影には、許可が必要ですので、必ず事前にご相談ください。上田市では、無断撮影、SNS等での無断公開はお断りしております。
