本文
上田地域・右岸(国分)売買700万円
更新日:2026年3月24日更新
売買













基本情報
所在地
国分1762、1763-2、1793-3
価格(売買/賃貸)
売買700万円
土地面積
221.56平方メートル(67.02坪)
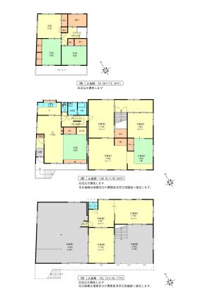
建物面積
170.06平方メートル(51.44坪)
1階 60.27平方メートル
2階 59.21平方メートル
3階 50.58平方メートル
1階 60.27平方メートル
2階 59.21平方メートル
3階 50.58平方メートル
建築年月日
昭和57年10月8日
間取り
4LDK+作業場
設備
電気、都市ガス、上水道、下水道、風呂、トイレ2ヶ所(母屋は水洗洋式トイレ、作業場はくみ取り和式トイレ)、駐車場あり(2台)
最寄り駅
しなの鉄道 信濃国分寺駅まで750m
その他施設
上田市役所まで3600m
上田警察署 国分交番まで1100m
上田警察署 国分交番まで1100m
通学区
神川小学校まで1100m
第一中学校まで1200m
第一中学校まで1200m
※物件掲載内容と現況に相違がある場合は現況を優先と致します。
地図
地図の読み込みに関する問題が発生したとき<外部リンク>
特記事項
管理番号1265(UR-0199)※この物件は要綱改正後に登録されたものです。
都市計画区域内、文化財保護法指定区域内、上田市景観計画区域内
上記土地面積の内訳は、国分1762は208.26平方メートル、国分1763-2は6.69平方メートル、国分1793-3は6.61平方メートル
上記建物面積は登記簿面積であり、別途、未登記の作業場(2階建て、昭和53年築、90.96平方メートル/課税明細書による)あり
未登記作業場は公共下水道未接続(接続は可能、買主負担にて宅内配管工事が必要)
室内外の残置物撤去は売主負担にて行う
現状有姿引渡し(売主の契約不適合責任免責)
リフォーム歴;年月日不詳 母屋トイレの便器交換
利用状況;空き5年(2026年3月)
経過;2026年3月新規登録
※上田市では全域において水防法に基づくハザードマップが作成されています。詳細については、「上田市災害ハザードマップ」で検索いただくか、危機管理防災課(Tel;0268-21-0123)までお問い合わせください。
※空き家バンクに登録されている物件は、多少から大幅まで何らかの補修を必要とします。
※空き家バンクに登録されている物件の下見、内覧時における写真、動画の撮影には、許可が必要ですので、必ず事前にご相談ください。上田市では、無断撮影、SNS等での無断公開はお断りしております。
都市計画区域内、文化財保護法指定区域内、上田市景観計画区域内
上記土地面積の内訳は、国分1762は208.26平方メートル、国分1763-2は6.69平方メートル、国分1793-3は6.61平方メートル
上記建物面積は登記簿面積であり、別途、未登記の作業場(2階建て、昭和53年築、90.96平方メートル/課税明細書による)あり
未登記作業場は公共下水道未接続(接続は可能、買主負担にて宅内配管工事が必要)
室内外の残置物撤去は売主負担にて行う
現状有姿引渡し(売主の契約不適合責任免責)
リフォーム歴;年月日不詳 母屋トイレの便器交換
利用状況;空き5年(2026年3月)
経過;2026年3月新規登録
※上田市では全域において水防法に基づくハザードマップが作成されています。詳細については、「上田市災害ハザードマップ」で検索いただくか、危機管理防災課(Tel;0268-21-0123)までお問い合わせください。
※空き家バンクに登録されている物件は、多少から大幅まで何らかの補修を必要とします。
※空き家バンクに登録されている物件の下見、内覧時における写真、動画の撮影には、許可が必要ですので、必ず事前にご相談ください。上田市では、無断撮影、SNS等での無断公開はお断りしております。
