本文
丸子地域(生田)売買150万円
更新日:2025年8月12日更新
売買










基本情報
所在地
生田2083-1、2083-3、2082-4
価格(売買/賃貸)
売買150万円
土地面積
362.96平方メートル(109.79坪/宅地・公衆用道路)
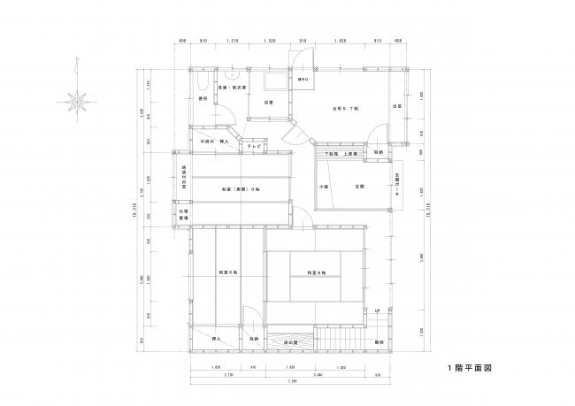
建物面積
1階 81.06平方メートル(24.52坪)
2階 22.68平方メートル(6.86坪)
2階 22.68平方メートル(6.86坪)
建築年月日
昭和41年5月5日
間取り
5DK
設備
電気、プロパンガス、風呂(灯油)、上水道、簡易水洗くみ取りトイレ(洋式)、駐車場あり(3台)、庭あり
最寄り駅
丸子デマンド交通(平日のみ運行)尾野山公民館バス停まで80m
その他施設
しなの鉄道大屋駅まで3900m
丸子地域自治センターまで5000m
丸子地域自治センターまで5000m
通学区
丸子北小学校まで2400m
丸子北中学校まで2300m
丸子北中学校まで2300m
※物件掲載内容と現況に相違がある場合は現況を優先と致します。
地図
地図の読み込みに関する問題が発生したとき<外部リンク>
特記事項
管理番号3232(UL-0211)
都市計画区域内、土砂災害警戒区域内、地すべり防止区域内、上田市景観計画区域内
宅地(生田2083-1)は345.47平方メートル、公衆用道路(生田2083-3、2082-4)は17.49平方メートルであるが、公衆用道路(生田2082-4)の8.23平方メートル分の持分は2分の1
公共下水道未接続(接続は可能、下水道受益者負担金は納付済みであるが工事が必要)
室内の残置物撤去は売主負担にて行う
現状有姿引き渡し
利用状況;空き7年(2023年2月)
経過;2023年2月新規登録
価格改定;2023年5月290万円⇒260万円
価格改定2024年5月260万円⇒250万円
価格改定2024年8月250万円⇒200万円
価格改定2024年11月200万円⇒180万円
価格改定2025年8月180万円⇒150万円
※上田市では全域において水防法に基づくハザードマップが作成されています。詳細については、「上田市災害ハザードマップ」で検索いただくか、危機管理防災課(Tel;0268-21-0123)までお問い合わせください。
※空き家バンクに登録されている物件は、多少から大幅まで何らかの補修を必要とします。
※空き家バンクに登録されている物件の下見、内覧時における写真、動画の撮影には、許可が必要ですので、必ず事前にご相談ください。上田市では、無断撮影、SNS等での無断公開はお断りしております。
都市計画区域内、土砂災害警戒区域内、地すべり防止区域内、上田市景観計画区域内
宅地(生田2083-1)は345.47平方メートル、公衆用道路(生田2083-3、2082-4)は17.49平方メートルであるが、公衆用道路(生田2082-4)の8.23平方メートル分の持分は2分の1
公共下水道未接続(接続は可能、下水道受益者負担金は納付済みであるが工事が必要)
室内の残置物撤去は売主負担にて行う
現状有姿引き渡し
利用状況;空き7年(2023年2月)
経過;2023年2月新規登録
価格改定;2023年5月290万円⇒260万円
価格改定2024年5月260万円⇒250万円
価格改定2024年8月250万円⇒200万円
価格改定2024年11月200万円⇒180万円
価格改定2025年8月180万円⇒150万円
※上田市では全域において水防法に基づくハザードマップが作成されています。詳細については、「上田市災害ハザードマップ」で検索いただくか、危機管理防災課(Tel;0268-21-0123)までお問い合わせください。
※空き家バンクに登録されている物件は、多少から大幅まで何らかの補修を必要とします。
※空き家バンクに登録されている物件の下見、内覧時における写真、動画の撮影には、許可が必要ですので、必ず事前にご相談ください。上田市では、無断撮影、SNS等での無断公開はお断りしております。
