本文
丸子地域(生田)売買300万円
更新日:2025年3月5日更新
売買















基本情報
所在地
生田2024含む6筆
価格(売買/賃貸)
売買300万円
土地面積
943.07平方メートル(285.27坪/宅地・山林)
建物面積
1階 153.71平方メートル(46.49坪)
2階 90.90平方メートル(27.49坪)
2階 90.90平方メートル(27.49坪)
建築年月日
年月日不詳(固定資産税課税明細書では明治43年)
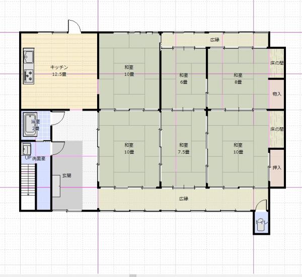
間取り
12DK
設備
電気、プロパンガス、風呂(灯油)、上下水道、水洗トイレ(洋式)、駐車場あり(4台)、庭あり、物置あり
最寄り駅
丸子デマンド交通(平日のみ運行)尾野山公民館バス停まで70m
その他施設
しなの鉄道大屋駅まで4000m
丸子地域自治センターまで5900m
丸子地域自治センターまで5900m
通学区
丸子北小学校まで2400m
丸子北中学校まで2300m
丸子北中学校まで2300m
※物件掲載内容と現況に相違がある場合は現況を優先と致します。
地図
地図の読み込みに関する問題が発生したとき<外部リンク>
特記事項
管理番号3233(UL-0212)
都市計画区域内、土砂災害警戒区域内、地すべり防止区域内、上田市景観計画区域内
宅地(生田2024、2025-1、2026-4、2025-7、1988-7)は646.07平方メートル、山林(現況竹林、生田2043-3)は297平方メートルであり、宅地に隣接する
上記建物面積は登記簿居宅面積であり、別途未登記増築部分あり
敷地内に附属建物として旧居宅(登記済、23.14平方メートル)、旧便所(登記済、9.91平方メートル)と車庫(未登記、2台分)あり
同地域(生田)内に農地あり、希望の方は別途価格等要相談(賃貸も可)
室内の残置物撤去は売主負担にて行う
現状有姿引き渡し
利用状況;空き15年(2023年2月)
リフォーム歴;昭和43年増築、平成5年リフォーム
経過;2023年2月新規登録、価格改定;2023年8月500万円⇒450万円、価格改定;2024年3月450万円⇒390万円、価格改定;2025年3月390万円⇒300万円
※上田市では全域において水防法に基づくハザードマップが作成されています。詳細については、「上田市災害ハザードマップ」で検索いただくか、危機管理防災課(Tel:0268-21-0123)までお問い合わせください。
※空き家バンクに登録されている物件は、多少から大幅まで何らかの補修を必要とします。
※空き家バンクに登録されている物件の下見、内覧時における写真、動画の撮影には、許可が必要ですので、必ず事前にご相談ください。上田市では、無断撮影、SNS等での無断公開はお断りしております。
都市計画区域内、土砂災害警戒区域内、地すべり防止区域内、上田市景観計画区域内
宅地(生田2024、2025-1、2026-4、2025-7、1988-7)は646.07平方メートル、山林(現況竹林、生田2043-3)は297平方メートルであり、宅地に隣接する
上記建物面積は登記簿居宅面積であり、別途未登記増築部分あり
敷地内に附属建物として旧居宅(登記済、23.14平方メートル)、旧便所(登記済、9.91平方メートル)と車庫(未登記、2台分)あり
同地域(生田)内に農地あり、希望の方は別途価格等要相談(賃貸も可)
室内の残置物撤去は売主負担にて行う
現状有姿引き渡し
利用状況;空き15年(2023年2月)
リフォーム歴;昭和43年増築、平成5年リフォーム
経過;2023年2月新規登録、価格改定;2023年8月500万円⇒450万円、価格改定;2024年3月450万円⇒390万円、価格改定;2025年3月390万円⇒300万円
※上田市では全域において水防法に基づくハザードマップが作成されています。詳細については、「上田市災害ハザードマップ」で検索いただくか、危機管理防災課(Tel:0268-21-0123)までお問い合わせください。
※空き家バンクに登録されている物件は、多少から大幅まで何らかの補修を必要とします。
※空き家バンクに登録されている物件の下見、内覧時における写真、動画の撮影には、許可が必要ですので、必ず事前にご相談ください。上田市では、無断撮影、SNS等での無断公開はお断りしております。
