ページの先頭です。 メニューを飛ばして本文へ
現在地 トップページ > 分類でさがす > 市政情報 > 庁舎・施設案内 > 庁舎案内 > 丸子地域自治センター

本文

丸子地域自治センター

ページID:0001059 更新日:2026年3月9日更新 印刷ページ表示

写真:丸子地域自治センター 

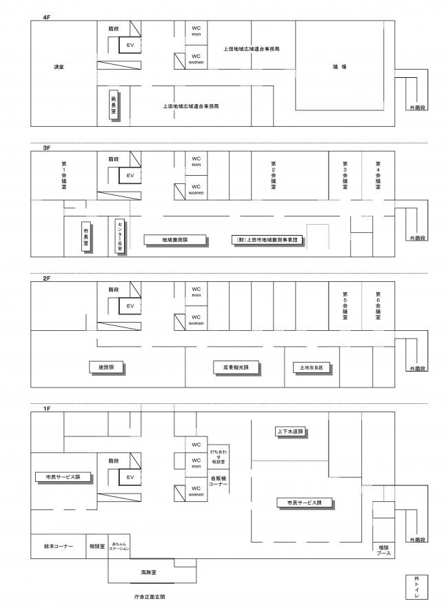
フロア案内

4階 上田地域広域連合
3階 地域振興課
上田市地域振興事業団
2階

建設課
産業観光課
丸子地域農地整備事務所
依田川沿岸土地改良区
上田市農業支援センター(丸子)

1階 市民サービス課
丸子武石上下水道課
相談室
多目的トイレ

庁舎平面図

Adobe Reader<外部リンク>
PDF形式のファイルをご覧いただく場合には、Adobe社が提供するAdobe Readerが必要です。
Adobe Readerをお持ちでない方は、バナーのリンク先からダウンロードしてください。(無料)